
【小洋壩】以本真尋求自在,用色彩喚醒活力

【項目信息】
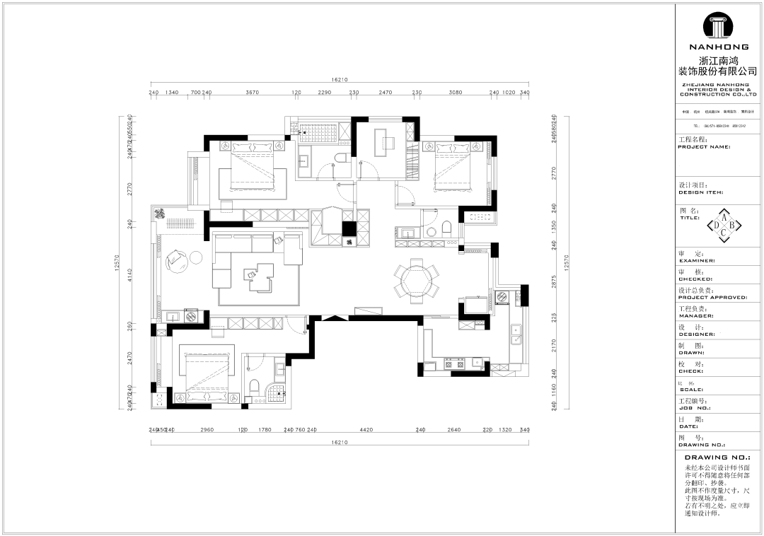
地址 | 小洋壩家園
城市 | 中國 杭州
戶型 | 四室兩廳
面積 | 160㎡
風格 | 現代簡約
設計施工 | 浙江南鴻裝飾
· 作品前言 本案結合屋主的生活習慣和審美偏好,合理規劃不同功能區,將動線調整舒適,并以灰白色系做主調,加上一些清新的色彩點綴,使空間在清冷穩重之余,亦不乏積極與活力。 · 戶型解析 優點:戶型為邊套,比較方正,光線視角好,可擴展面積多。 缺點:房屋中間有根柱子導致動線受限;廚房不方正;鞋柜區偏少等。 設計改動: ①為解決柱體結構問題做了玄關造型的處理,并縮小公衛的使用區域,改變原過道的動線; ②拓展陽臺區域以擴大廚房使用面積,最大限度保證廚區操作空間和生活電器使用需求; ③主衛拓展設備平臺,增大使用面積,次衛墻體設計玻璃磚以改善采光。 入戶利用玄關柜和精致的石材面做了現代風的端景設計,化解中廳承重柱的尷尬的同時實現收納和審美的雙向需求。 客廳是一個格局方正、氣質淡雅的空間,青色的布藝沙發搭配簡約風茶幾和地毯,背景部分留白僅以裝飾畫點綴,加上點線面光源的勻質組合,展現出松弛又溫暖的生活情景。 電視背景以懸空的收納柜形式呈現,消除體積上的厚重感,簡潔又有層次。木飾面板中藏起通往次臥的房門,視覺得到統一。 餐廳的裝飾同樣也是干凈利落,巖板圓桌搭配皮藝餐椅,大大提升空間的質感。整面的餐邊柜滿足收納需求,同時中部的操作臺也能作Home Bar使用。 木白色調組合的廚房空間清爽明亮,餐廚之間使用黑玻移門,加上選用的集成灶,能夠輕松消除油煙煩惱,盡情享受烹飪的樂趣。 干區對面過道處的收納柜也增加了移動排插,讓日常生活使用電器能夠更加方便。 臥室的風格依然延續公區域的基調,剝離了墻頂地一切不必要的裝飾,以本真的外在,將居室輕柔地籠在溫馨和寧靜之中。 次衛做干濕分離,干區巧借玻璃磚,這樣既有了清新明媚的裝飾效果,又能有效解決采光問題。色彩豐富的臺盆柜選擇,也讓區域顯得更加生動和有趣。














下一篇:江上 | 時光清和,流年似夢
免費
免費申請戶型規劃
專屬設計師免費1對1全程服務
已經有3782人申請
24小時免費咨詢電話
400-8800-618
你家預算
108080元