
55㎡兩室一廳 | 小是小,情調那是一點兒也不能少!

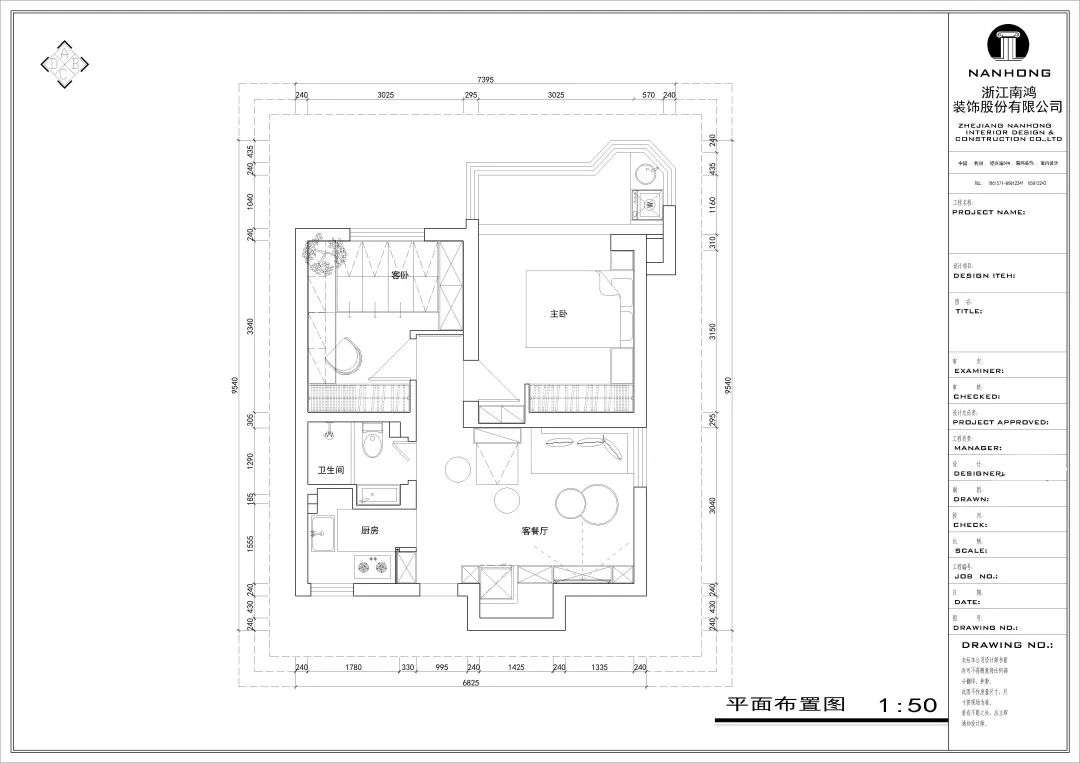
項目信息 PROJECT INFORMATION 地址/ 翠苑四區 城市/ 中國 杭州 戶型/ 兩室一廳 面積/ 55㎡ 風格/ 現代混搭 設計施工/ 浙江南鴻裝飾 本案位于杭州翠苑四區,面積約55方,選擇的是現代混搭風格。 女業主的媽媽是我們的老客戶了,因為那次愉快的合作經歷,所以在拿房之后,女業主也是火速聯系上了我們,為她裝修這個新家。 ▲業主媽媽胡女士的家,點擊可瀏覽案例詳情哦~ 本案戶型面積較小,整體色彩還是以留白為主,局部做了深綠的調色營造復古浪漫的格調,女業主非常喜歡設計師之前為她媽媽的住宅所做的綠色拼色效果,所以這次設計師也復刻了下來。 因為各個空間相對局促的關系,所以設計師為解決幾個必要的功能而融入了許多的小巧思,比如在廚房與衛生間這塊,衛生間開門空間不夠,折疊門又美觀度欠佳,所以最后選擇在此處做了一個吊軌外掛移門,兩邊自由移動,廚房與衛生間同時兼顧,開放式、封閉式流暢轉換! · 戶型設計 >>原始戶型圖 平面方案圖<< 設計改動: ①針對客餐廳,設計師改動次臥與主臥的門洞,使兩扇門使用同一通道,節省的空間給到客餐廳。業主雖然不常在家里吃飯,但還是需要保留餐廳功能,因此在餐廳安置了折疊餐桌; ②廚房和衛生間中間的墻我們重新砌筑成S形的隔墻,擴展廚房臺面的同時,也給衛生間加入了臺盆與淋浴房的功能; ③主臥與陽臺打通,將窗簾盒置于陽臺達成臥室空間的最大化。 1 | 玄關 Hallway 入口處在墻內嵌入一組白色的玄關柜,中空與底部留空減少了視覺擁堵感,也更能考慮到日常使用的細節。 2 | 客廳 Living Room 來到公區域空間,面積的局促使得設計必須盡可能高地提升空間利用率,比如在冰箱旁做了儲物高柜、省去了常規的茶幾留出更多活動空間等,平整流暢的吊頂有助于拉伸縱向視線。 居室內家具的選配充滿著簡約時尚的感覺,不同的材質和造型打破空間的固化,使之不再單調,花束綠植的加入則釋放出淡雅的詩意,描繪著寧靜的幸福。 白色非常百搭,且有助于放大空間感。弧形的電視背景墻適當柔化結構,也代表著一種潮流的生活態度。電視柜做了傳統的落地款式,用來儲存雜物與擺放一些裝飾品。 3 | 餐廳 Dining Room 餐廳保留必要的就餐功能,餐桌靠墻擺放節省過道空間。 折疊式的餐桌可以滿足夫妻二人的日常使用,有朋友拜訪時也能解決聚餐問題。 4 | 過道 Corridor 生活可以不那么鮮艷,卻一定要有自己的顏色,這個家選擇的便是代表自然和生機的綠色。走廊盡頭處,乳膠漆、裝飾畫和植物共同打造場景感,可以窺見到平靜而放松的日常。 5 | 臥室 Bedroom 主臥,細膩的材質與溫和的燈光營造舒緩的睡眠空間,綠色和棕色碰撞出了復古的味道,也豐富了家的視覺層次和質感。陽臺包進室內并綜合了家務功能與休閑功能,空間利用率得到大大提升。 次臥從功能延展性出發,做了榻榻米的設計,平常可用于儲物、辦公、午休,有朋友拜訪時則能充當臨時客房。 6 | 衛生間 Bathroom 玻璃淋浴區讓空間看起來通透明亮,簡單的干濕分離也能讓日常使用更科學高效。地面鋪小花磚增添亮色,可抽拉的水龍頭和懸空式的臺盆柜能讓衛生清理變得更加方便。



















免費
免費申請戶型規劃
專屬設計師免費1對1全程服務
已經有3782人申請
24小時免費咨詢電話
400-8800-618
你家預算
108080元