
“雜志風”自然系家居,還有復古的腔調!

本案常住一家三口,還有一只馬爾濟斯愛犬。屋主喜愛自然、隨性、慵懶的居家氛圍,并希望有更多專屬于這個家的個性氣質。
項目的核心在于讓自然與設計靈性相融。室內以大地色系主導,加入胡桃木調和,搭配布藝、亞麻、藤編等自然感材質,營造質樸而溫馨的氛圍。
除自然基調外,設計師還在客廳、廚房等多處空間融入復古的細節,加上質感的藝術涂料,為空間的趣味性層層加分。

舒適是筑家的另一個關鍵,當使用者能與空間從容對話,自在感便油然而生。
空間搭載高規格機能,每個場域皆有明確屬性。無論是下廚料理、讀書休閑,亦或只是靜坐沙發一隅,都能感受到,那關于家的所有純粹和美好。
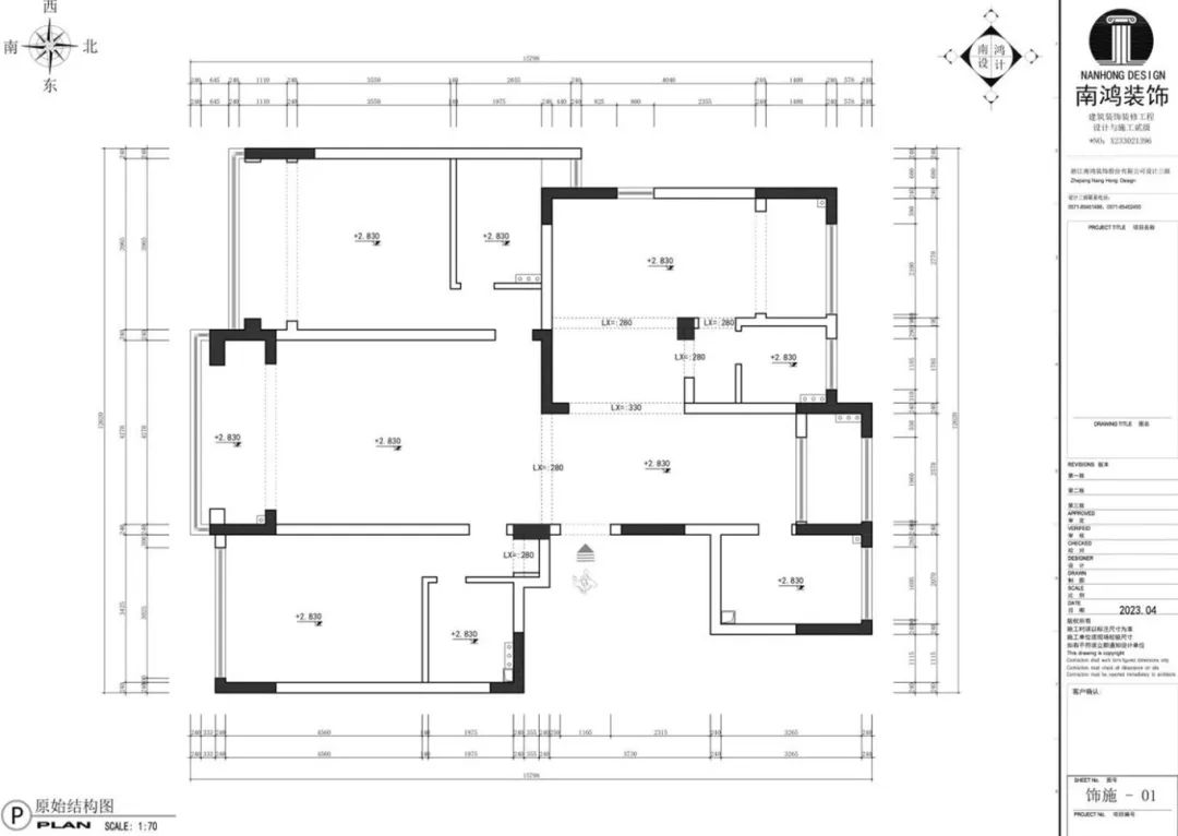
原始戶型// 優點:戶型方正,空間比較大,視野較好,南北通透; 缺點:餐廳過于狹小,進門直沖一個柱子,書房過于獨立,主衛是暗衛等。
設計改造// ①做獨立玄關,同時也是通往兩側客餐廳區域的過渡。 ②原有公衛空間融入西廚和餐廳,使餐廚尺度更加合理舒適。 ③書房入口改到南面,增加一條動線。 ④臥室用玻璃隔斷睡眠區,牽引光線至暗衛,改善采光問題。
玄關


寬敞、明亮的門廳正式迎接主人的歸家,黑框藝術畫+木質長椅漫開優雅氣息。兩側分別通往客餐廳,玄關在中間做了一個有趣的承接。
客廳電視墻的紅磚元素一路延伸至此,整體公區域的貫通感和通透性都得到顯著提升。
客廳


一只手觸碰時間,一只手觸碰自然,客廳就是這樣一個擁有雙面屬性的神奇空間。
電視墻引入工業風的代表性元素“紅磚”,并搭配創意石膏板造型,展現復古率性而又活潑溫暖的空間表情。

素樸柔和的軟裝家具形成對空間硬裝的呼應,自然以最融洽的方式被邀請進來,為空間提升暖度與親和感。

大地色系主導的居室空間低調沉穩,角角落落都被舒適和愜意填滿,讓人只想坐著、躺著,閑度每一個慵懶好時光。
餐廳
原本餐廳受限于格局而顯得狹小,戶型改造之后,變得更加寬敞明亮,并能容納島臺、餐邊柜和西廚空間,將功能性最大化。

開放式島臺西廚區與餐桌結合,環繞式動線打造互動性超強的餐廚場景,兼顧就餐、備餐、儲物、社交等多重需求。



定制的多邊形餐桌打造餐區獨特表情,成為公區域中的一大亮點。
深色胡桃木占據視覺重心,釋放內斂平靜氣息,輔以黑色質地的高顏值島臺和鐵藝吊燈,設計對于美與實用的平衡把控,便巧妙隱藏在凝練布局與獨到的質材細節之中。
廚房

廚房更是一個流露強烈摩登感的時尚空間。
大紅色復古造型冰箱立于廚區入口,率先抓住視線,彰顯獨特的藝術性和存在感。

廚房內里鋪貼多邊形個性小磚,加入紅色的跳色,與溫潤木質櫥柜形成趣味反差,清爽舒適中又帶著浪漫的煙火氣,編織起一幕幕迷人日常。
免費
免費申請戶型規劃
專屬設計師免費1對1全程服務
已經有3781人申請
24小時免費咨詢電話
400-8800-618
你家預算
108080元