
330㎡現代簡約 | 捕捉光的游弋
項目信息
PROJECT INFORMATION
地址/ 嘉潤公館
城市/ 中國 杭州
戶型/ 大平層
面積/ 330㎡
風格/ 現代簡約
設計施工/ 浙江南鴻裝飾
作品前言
ABOUT HOME
本案為330方現代簡約風大平層項目,黑白灰主調,搭配精心調配的光氛與中性色的軟裝,勾繪簡約而又穩重的和諧家景。
空間用少而精的軟裝家具營造更多留白,不著痕跡地闡述著簡雅特性。設計十分注重環境與人的適配尺度,以光作序,以線條為引,向我們娓娓道來寧謐但深刻的意境。

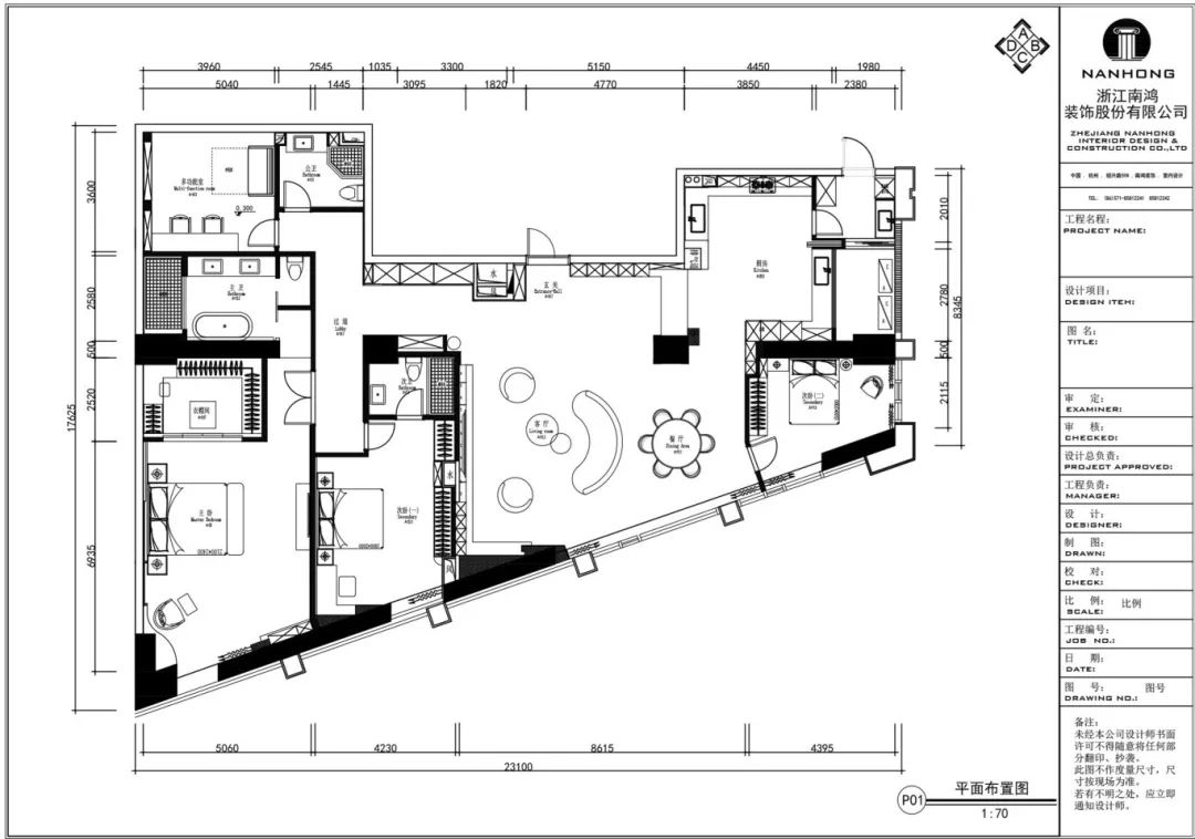
戶型方案
LAYOUT DESIGN

實景呈現
CASE APPRECIATION
No.1
客廳


公區域通鋪米色淺紋瓷磚,留予寬敞境域,將視野貫通、延伸。L型轉角黑色地臺搭配懸浮式白色背景墻,呈現輕盈雅致的現代風范,大尺寸弧形沙發包容自由隨心的觀影時刻,精簡樸素的外在無形擴大空間之感。
No.2
餐廳

客餐不設隔斷,形成全開放視野的自由流動場域。大理石面圓桌搭配簡約圓潤感的餐椅,吊頂垂落一盞藝術燈飾,綻亮日日共餐時光。

公區布局層次分明,在餐廳通往廚房的區域做了休閑吧臺設計,打造美觀實用的茶歇、社交空間,升華生活韻味與格調。



燈帶線條與格柵造型起到很好的延展層高作用,內嵌鏡面放大空間,柜體配備暖黃光源,除了為空間深化井然線條感,亦幫助營造寧靜愜意的咖啡廳式氛圍。
No.3
廚房

廚房區增添吊軌聯動推拉門,不僅可以隔絕炒菜時的油煙,極簡式外觀又能為區域增加更多時尚感。內部配備黑色櫥柜,極簡高級的立面,讓廚區變得格外優雅。
No.4
走廊


過道區域援引黑色板材和溫潤木紋,結合凹凸結構、體塊分割以及簡潔利落的燈光,形成浮動錯致的視覺效果,立體度鮮明,低調中飽含著豐富層次質感。
No.5
臥室


臥室設計柔和的圓弧型床頭背景,留白創造呼吸感,深色床具形成簡約的反差,空間以一種樸實真誠的姿態與居者相對,繼而釋放出層層安穩平靜的睡臥情緒。

靜謐的臥眠區床頭,以豎向拉槽的形態烘托動態空間氛圍,佐以半墻木面與白色燈光,描繪著輕盈舒緩的私密情景。
No.6
電競房


解鎖成年人的快樂,有時候只需要一間電競房。墻面開辟置物層架,方便后期收納手辦、模型、書籍等,為空間裝飾個性的一面,銀色畫面中的燈帶造型則更是拉風酷炫,形構出了賽博朋克風的科技感視覺!
No.7
衛生間



衛浴間通鋪經典灰色的微水泥瓷磚,獨特紋理帶著淺淺的潮感和優雅,展現別具一格的質地。空間依面積大小有序劃分不同機能區域,通透玻璃材質和鏡面巧妙放大整體,營造極強的視覺穿透感。
上一篇:中間套采光差?沒事,有救!
免費
免費申請戶型規劃
專屬設計師免費1對1全程服務
已經有3767人申請
24小時免費咨詢電話
400-8800-618
你家預算
108080元