
九月設計師大會 | 現代風格“混戰”,誰能拔得頭籌!
在炎熱的夏季過后,九月可以說是最值得期待的月份了。
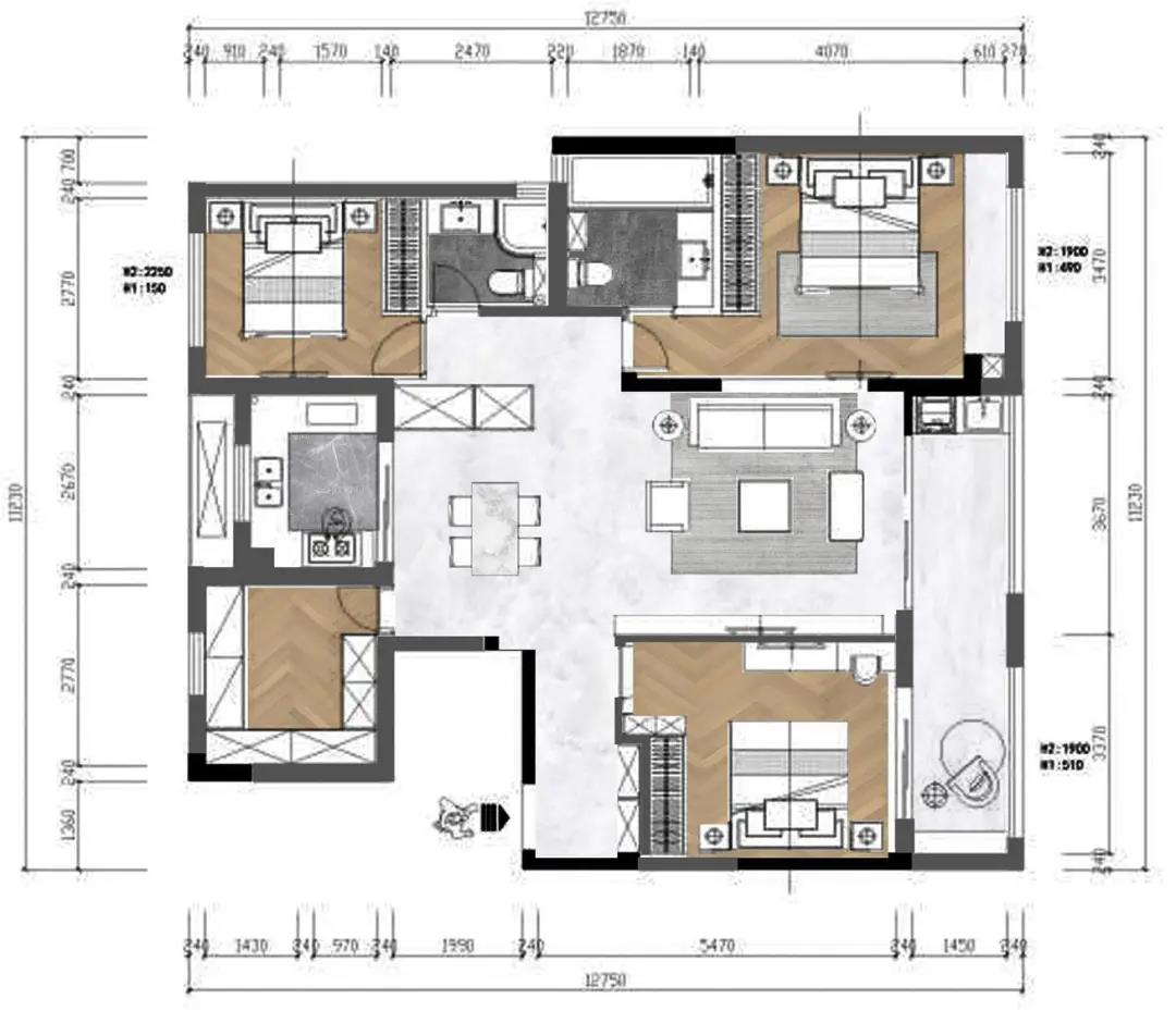
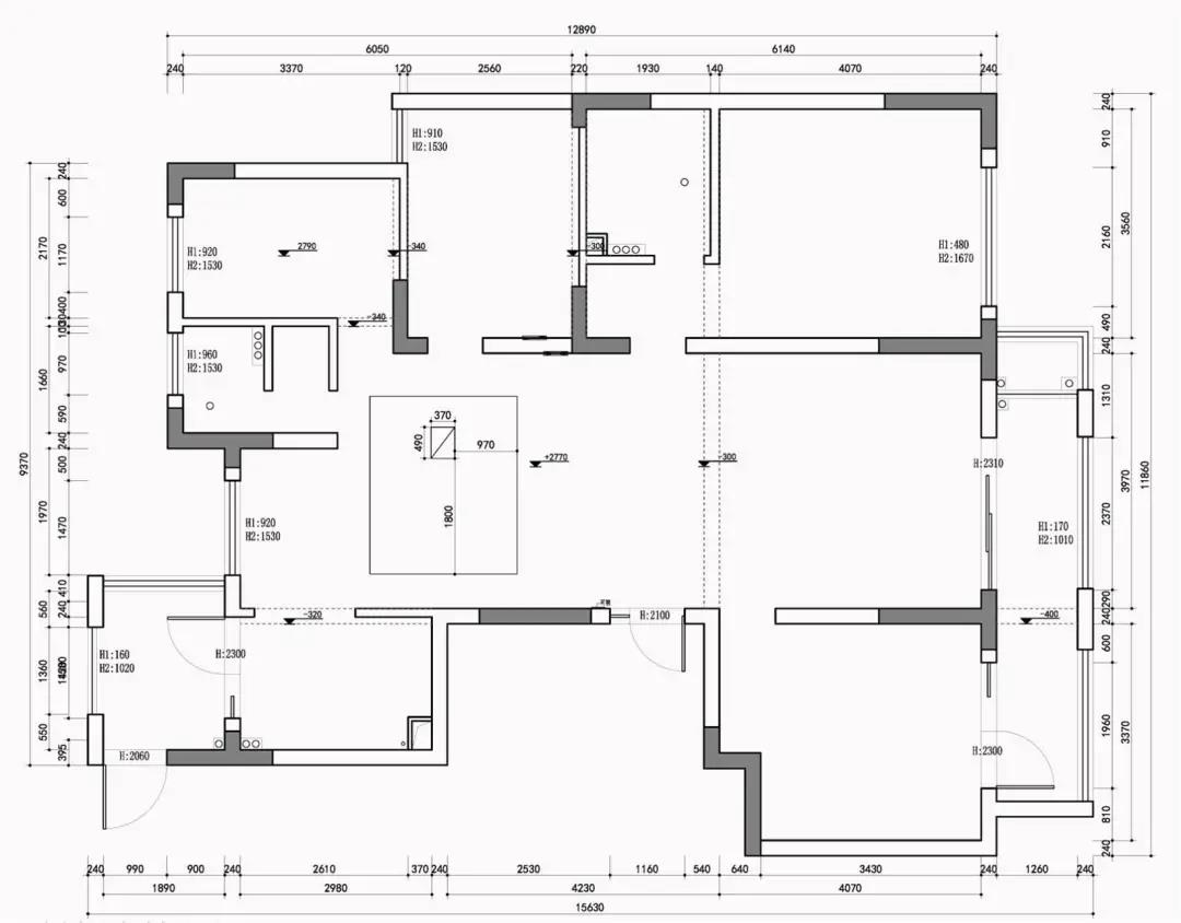
氣溫漸漸會轉涼,月亮也要展示它最圓滿的模樣,吸收了滿滿能量的稻谷也將變成耀眼的金色。 最關鍵的是,小鴻仿佛已經看到國慶中秋聯假在向我招手了耶~ 一想到即將到來的美好日子, 小鴻感覺自己渾身都充滿了工作的動力! 接下來讓我們一起看看昨天的設計師PK賽上都有哪些精彩內容吧! 本次PK賽的冠軍,是來自我們設計六部李玲老師一套現代風格的作品——上塘宸章。 現代風格在當下非常流行,對年輕人來說,裝修不需要太復雜、奢華,保持足夠的品質與設計感即可,現代風格就成了一個很好的選擇。 - 戶型圖 - - 工地圖 - 目前硬裝已竣工完畢,軟裝還未進場,來看看房屋現在的狀況: 本案主色為白色,輔以高級灰,簡潔清爽的個性一覽無余。從現場圖片能看到,餐廳轉角是硬裝上的唯一跳色,頂面多是線性光源,同時廚房部分電器外移,增加內部儲物空間。 再比照一下效果圖: 還原度超高的哇! 蕭山分部——衙前自建房改造 這是一套自建房局改項目,業主為一位建筑設計師,因為職業的關系,對裝修的需求還是十分明確的。 - 戶型圖 - ▲針對二樓的主臥空間進行改造。 - 實景圖 - ▲主臥部分 ▲衛生間部分 房間及書房的主色是原木民宿風,而衛生間則走精致酒店流。 城東分部——水岸帝景 水岸帝景是一套全屋改造項目,總面積85方,面向錢塘江,擁有絕佳的風景,客戶的意向是在北歐風的基礎上增添一些輕奢元素,目前尚未施工完畢。 - 效果圖 - - 工地圖 - ▲業主家在八年前的第一次裝修也是南鴻經手的,而且碰巧還是同一個項目經理! 科技城分部——未來海 本案為80方的全包項目,業主希望自己的家是溫馨而舒適的,要求有一定的質感與設計感。 - 戶型圖 - - 效果圖 - ▲時尚、精致、隨性的藝術生活氛圍,能使置身其中的人不自覺地流露出熱愛生活的情愫~ 設計二部——豐潭欣苑 本案同樣為現代風格的作品,原戶型圖存在進門正對衛生間和臥室門、餐廳過小、北面廚房擴充等問題,設計師一一進行了調整。 - 戶型圖 - ▲保留了三個房間一個書房;擴充廚房,處理電器擺放及操作流線問題;盡可能多地考慮到儲物功能及分類儲存。 - 實景圖 - 設計三部——上實海上海 本案為110方現代混搭風格的作品。“混搭”是一種獨具個性的家居風格,它可以擺脫沉悶,突出重點,給人帶來輕松、隨意、自由自在的氛圍感覺。 - 戶型圖 - - 實景圖 - ▲祝董為上月優勝設計師頒獎 廖老師本次還特地為我們分享了她之前獲得和美獎的作品杭州公館,隨后祝董上臺,為大家講述了當時參賽的臺前幕后,并期望全體員工都能保有強烈的企業榮譽感,為南鴻的美好明天奮斗不止!


































免費
免費申請戶型規劃
專屬設計師免費1對1全程服務
已經有3791人申請
24小時免費咨詢電話
400-8800-618
你家預算
108080元