
【印象湖濱】270°環景落地窗,大平層的“優越感”,藏不住了!

【項目·信息】
地址 / 印象湖濱
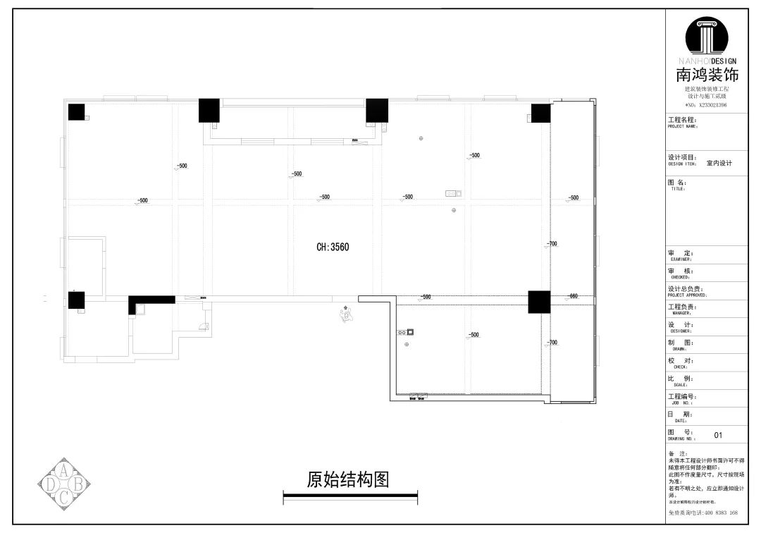
戶型 / 大平層
面積 / 300㎡
風格 / 現代簡約
設計施工 / 浙江南鴻裝飾
本案常居者為幸福的一家三口,男孩10歲,父母偶爾小住。
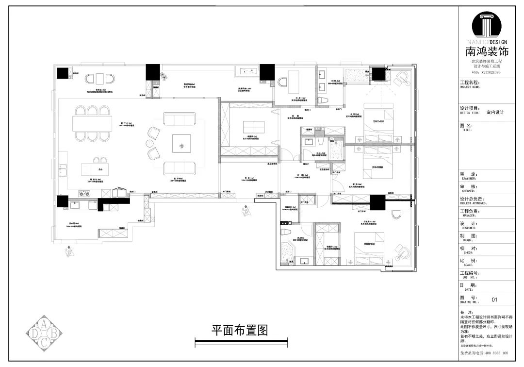
本案最大的驚喜,莫過于這270°的落地玻璃空間了。設計師不舍得浪費一點觀景視野,盡量保留了窗戶的落地范圍,突出大平層的寬闊感。

空間化繁為簡,開放式布局最大化平層優勢,島臺西廚、3個標配衛生間的大臥室來滿足不同功能需求。戶型雖大,卻是將每一寸空間都利用到了極致。黑白灰的簡約空間中點綴一些橘黃,明亮的光將室內的自由感、包容度調配得恰到好處。


玄關
HALLWAY

玄關是與動靜區相通的空間,縱深感強烈。巖板背景+地臺+成品裝飾柜,搭配燈光效果營造大氣感受。兩側深灰鞋柜提供儲物功能,換鞋凳與柜體結合,讓視覺更潔凈。
客廳
LIVING ROOM

客廳沒有任何復雜的軟硬裝造型,頂面是簡潔的無主燈,沙發、單椅以電視為中軸線兩兩對稱擺放,呈圍合布局,增強社交領域的互動。


皮藝面料、大理石材質、局部暖色的點綴,讓軟座區不僅質感突出,還帶上了意式輕奢的味道。過道從玄關延伸進儲物區并與廚區做了一個小小的分隔,空間整體性強且過渡流暢。

客廳望向餐廚。張弛有度的空間處理,不同功能區的隱形劃分,多維拓展著家的居住體驗,實現物質與精神的雙重安放。
餐廳
DINING ROOM

餐廳位于家中觀景的最佳區域,搭配美食的助力,疊加出無窮樂趣。在強烈的光感下,空間不同質感的灰、白也呈現出豐富的表情??看疤幪Ц?8cm成一個小地臺,搭配休閑躺椅和落地燈,方便主人日常覽景、讀書。

金屬色有機點綴,增強空間的精致感受。
廚房
KITCHEN

廚區與餐廳緊密聯系,構成料理、用餐、社交于一體的多功能場景。


開放式廚房消除空間內的所有束縛,讓生活動線得到最大優化,島臺的加入,實現顏值與收納的雙贏。
陽臺
BALCONY

有靈魂的家居,都有著自己的個性,它們會在寧靜的晨光和詩意的黃昏里,與空間悄悄地對話。
臥室
BEDROOM
主臥是包含衣帽間、書房、衛生間在內的大套房。

來到步入式衣帽間,色調與材質呈現溫和、沉穩又帶摩登感的氛圍,封閉式柜體讓衣物收納更省心省力。

過道的儲藏柜、兩扇隱形門構成白凈的塊面,設計抽離多余的表達,只留純粹美感。



主次臥調性一致,極具包容的大地色系敘述著空間的溫柔靜美,格柵元素添加層次,自然的光影輕歌曼舞,譜寫愜意的生活橋段。
衛生間
BATHROOM

全屋的落地窗延續到衛生間,優越的都市風景讓每天的沐浴也有了迷人的情調。墻地的深色與洗漱臺的淺色形成視覺反差,金屬細節讓空間看起來更加賞心悅目。
免費
免費申請戶型規劃
專屬設計師免費1對1全程服務
已經有3782人申請
24小時免費咨詢電話
400-8800-618
你家預算
108080元