
南鴻裝飾8月全體設計師會議順利召開
腳踏實地做事,精益求精發展。持續提升設計、工程水平,做好萬家品質交付,我們一直在路上。

南鴻裝飾8月全體設計師會議于昨日如期舉行。本次會議共有7位設計師帶來了他們的作品分享,以及新入駐南鴻的品牌合作商帶來的材料講解,一起來看看吧。

MVP作品
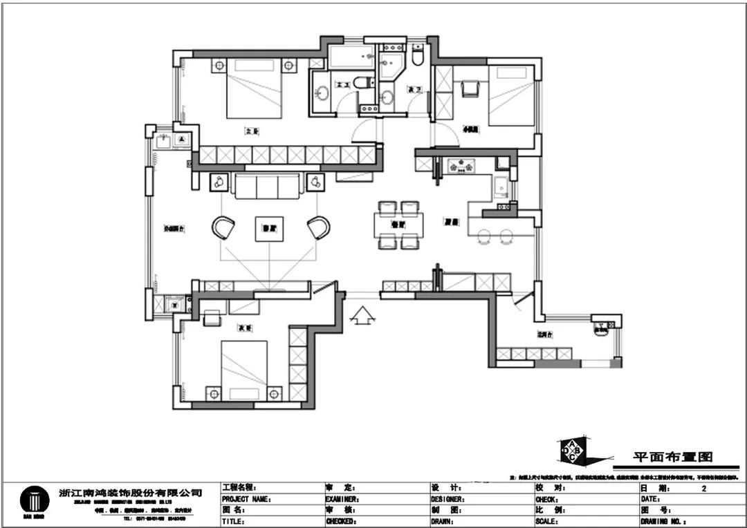
全案組陳建勛/ 濱湖天地

一套非常優秀的極簡侘寂風作品,很素,很酷!室內墻面選用仿水泥的藝術漆材質,古樸的老木頭家具元素,斑駁的色澤,和一室的光影,讓你能生動感知到一種難以言喻的生命力正蘊藏在其中~

【戶型設計】 濱湖天地 / 130㎡ / 侘寂風
侘寂風對“原始感”抱持著最樸素的欣賞,它不是簡單的“空無”,而是在最樸實無華的境界中,贏得超越時間和歲月的美。
空間整體做留白并設計了大量弧線,優美的曲線柔和空間結構??蛷d包進陽臺做休閑區,餐廳規劃島臺和壁龕,臥室做地臺床并增加衣帽間,設計滿足了審美與實用的雙重需求。
效果圖▼


實景欣賞▼
蕭山分部周杰 / 南江壹號

這是一套相當大氣的現代輕奢風格作品。寬敞的平層格局讓人倍感舒適,各種獨特的配飾在氛圍烘托下具有生動而豐富的畫面表現力,將精致的生活格調緩緩鋪開,空間細膩的質感彰顯著濃厚的輕奢意味。

【戶型設計】 南江壹號 / 282㎡ / 現代輕奢
作為居室來講,“色彩和諧”應該是第一位的。無論采用哪一種配色方案,都至少要取得和諧的視覺效果。
本案以高雅的銀梨木色為主色調,高級灰為輔,軟裝家具上選擇一些對比色做點綴,整體空間顯得深邃而寧靜。多種材質的和諧搭配,低調展現居室的風采。優雅的空間美學、低飽和度下的輕奢藝術,將舒適和顏值雙向拉滿。
效果圖▼


實景欣賞▼

設計二部韓甜甜 / 西溪之星

這是一套95方兩室兩廳現代風格的作品,業主是一位非常追求生活品質的單身主義女性。在作品拍攝時她其實已經入住了差不多有一年的時間,所以我們在實景圖中也可以看到許多溫馨的裝飾小細節。

【戶型設計】 西溪之星 / 95㎡ / 現代
本案因為是業主一人居住,所以設計師結合她本人的需求,將客餐廳改造為了大的開放式結構,使公區域看起來更加敞亮??蛷d去掉傳統的電視背景并增加小物品存放和展示的區域,餐廚則加入島臺兼做吧臺,增強休閑功能。
簡單、自然、舒適的單身空間,墻面色彩我們選擇了溫和的米色,局部用亮色軟裝飾點綴,加上女主人自己精心布置的飾品搭配,讓空間充滿了治愈和陽光的氣息~
實景欣賞▼

設計六部丁夢倩 / 國風美域

由六部丁老師帶來的一套現代簡約風格作品。現代簡約作為一直在流行的一種大眾風格,講求的是從功能設計出發,著力凸顯空間結構的明朗、大氣、美觀,外觀的簡約恰恰是一種以少勝多的精心設計。

【戶型設計】 國風美域 / 133㎡ / 現代簡約
本案是一對年輕小情侶的婚房,男業主從事平面設計,對自己的事業以及未來的家居生活都有清晰明確的方向。根據業主的需求,設計師以現代簡約風格為設計主軸,以時尚的高級灰為基調為他們打造這個理想之家,予人簡單卻不凡的感受!
女主人還非常喜歡愛馬仕橙的顏色,所以我們也可以看到在不同空間的軟裝家具上都有愛馬仕橙的活力點綴。
實景欣賞▼

科技城分部王麗婷 / 龍湖春江彼岸

由科技城王老師帶來的現代風格龍湖春江彼岸作品。空間整體的燈光布置非常細膩,頂面線條帶來秩序感和延伸感,點線面不同層次燈光為空間制造豐富的光效變化,滿足生活的日常需求。

【戶型設計】龍湖春江彼岸 / 135㎡ / 現代
居室整體木作采用冷色系成品科技木,加上精簡的空間布局,顯得清爽而有格調。
全屋的燈光、門鎖、窗簾和家電都被有序納入了智能控制系統,為業主成功塑造出這個便利關懷與現代主義并行的未來式生活空間。
實景欣賞▼

城東分部胡曉萍 / 錦繡嘉苑

一套溫馨浪漫的奶油輕法式風格作品。奶油色真的是讓人一眼萬年的顏色??!自帶溫柔又高級的氣質,帶著幾分淡淡的恬靜,給空間創造出軟軟糯糯、甜而不膩的視覺效果。

【戶型設計】錦繡嘉苑 / 130㎡ / 現代法式
設計師通過對空間細節與屋主需求的捕捉,將甜美的奶油色鋪滿整個居室,局部還搭配了巖板、金屬等材質,加入了古典意味的壁爐與精致的石膏線條,大大增強空間的藝術感和高級感。
實景欣賞▼

設計三部傅劍云 / 稽山一品

最后是由三部傅老師分享的位于浙江紹興的一套別墅大宅作品。傳統中式比較古板,不受年輕人的喜愛,為了平衡不同年齡段居住者的喜好,本案選擇了禪意新中式來打造,素色與留白的打造讓居室更具包容性。


【戶型設計】稽山一品 / 400㎡ / 新中式
新中式不是簡單的中式元素堆砌,它所代表的是一種折中圓融的美,既有傳統美學的雋永雅致,又有現代美學的簡約時尚。
素雅的色調,溫潤的胡桃木材質和簡練的線條,交融在一起,造就空間的均衡秩序。這種清晰、明亮的結構,帶來恒久的美,雖不刻意張揚,卻難掩其中的氣質與內涵。
實景欣賞▼


瀾鼎華府:新入駐南鴻展廳,與南鴻展開深入戰略合作的瀾鼎華府的小伙伴,此次也為設計師們帶來了旗下衛浴產品的知識講解。


產品部:介紹展廳內陶瓷、浴室柜等套餐產品的最新出樣情況。


△祝董為各業績優秀的設計師頒獎
已經是最后一篇了
免費
免費申請戶型規劃
專屬設計師免費1對1全程服務
已經有3781人申請
24小時免費咨詢電話
400-8800-618
你家預算
108080元